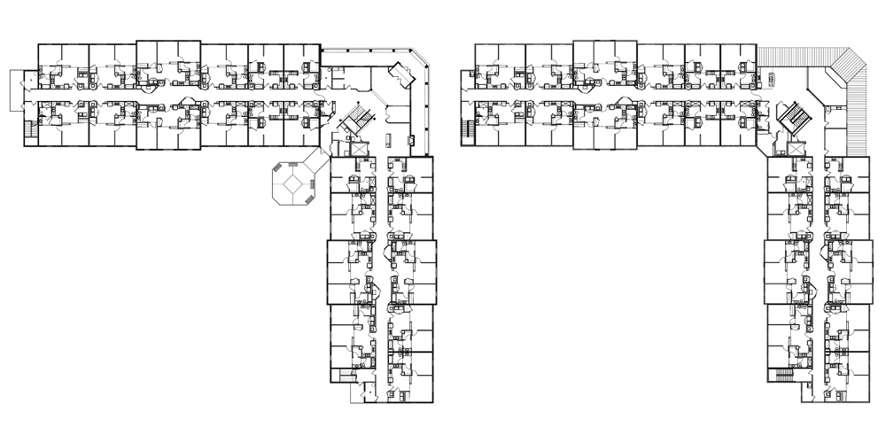
A low-income seniors housing community funded with IHCDA credits. The buildings are designed and constructed with special Energy Star features. The Phase 1 project has a 42-unit Main Building and five 4-plex Ranch Buildings.