No notices at this time
Previous
Next

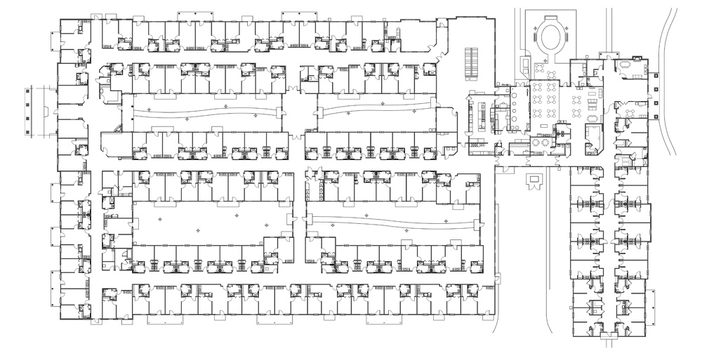
Riverwalk Commons

Noblesville, IN

A new 92-unit assisted-living and dementia-care facility.