No notices at this time
Previous
Next

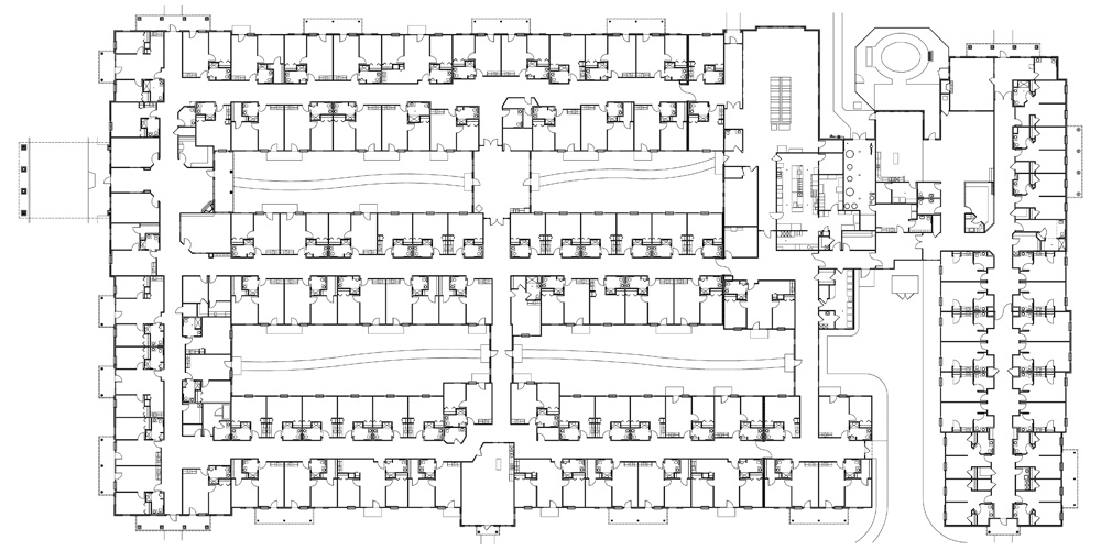
Brownsburg Meadows Assisted-Living

Brownsburg, IN

A senior's facility located on a healthcare campus, including an attached wing housing residents with memory care needs.